Properties For Sale
Real Estate For Sale In Colorado
Properties For Sale
Below, you will find current real estate listings throughout Colorado. To view the full details about a property, simply click on the photo of the property that you are interested in. Once you’re on the selected property, you’ll be able to request more info, schedule a showing, or directly contact the listing agent. We look forward to working with you on your next real estate transaction!
Windsor Gardens660 S Alton Way 7ADenver, CO 80247




Mortgage Calculator
Monthly Payment (Est.)
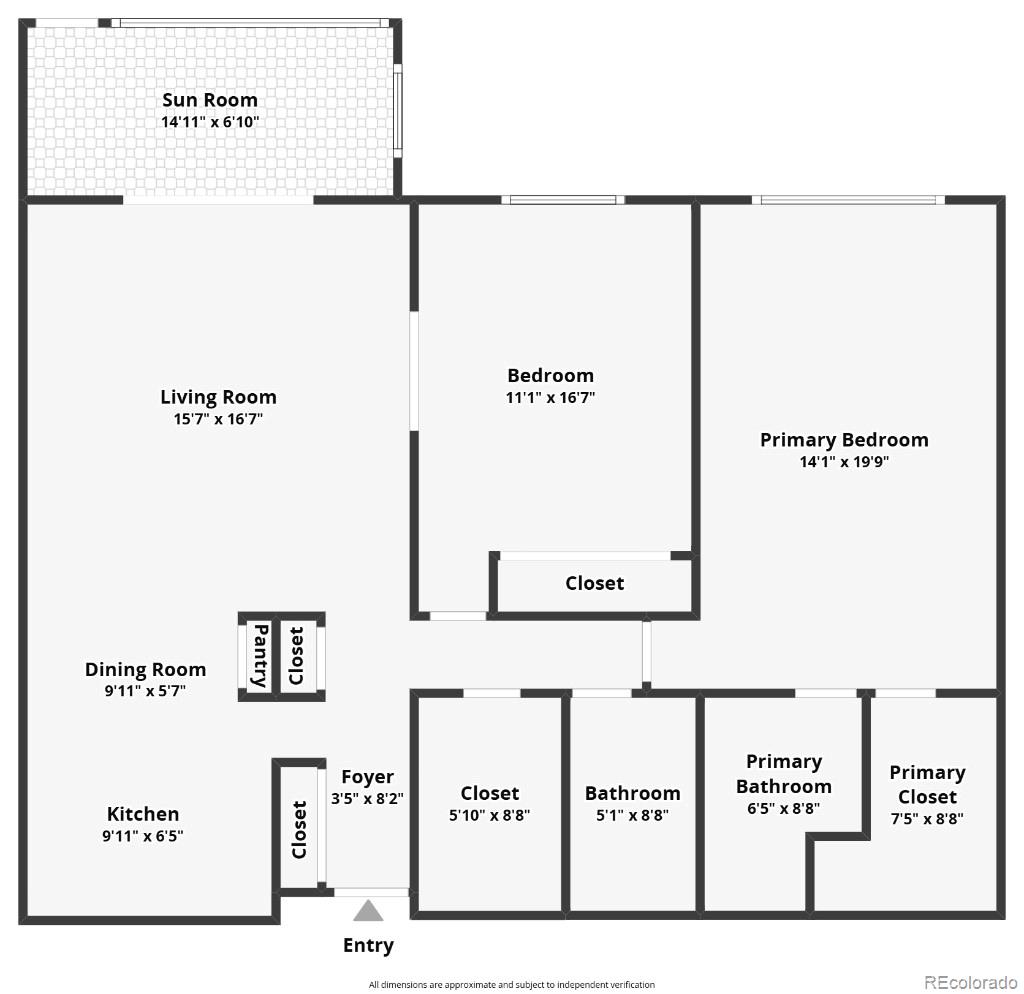
$1,095Yes, it’s another Windsor Gardens unit—but this one’s got a few tricks up its sleeve. **Seller is offering a $5,000 flooring allowance... so you can add the LVP of your dreams.** This well-maintained, freshly painted, 2-bedroom, 2-bathroom home offers 1,200 square feet of comfortable, easy living plus the rare luxury of not one, but two garages (#63 and #138 in Lot-13), conveniently located near the building entrance. That’s right—no epic treks with groceries required. The kitchen has had a solid glow-up, featuring oak cabinets, stainless steel appliances, quartz countertops, a fresh backsplash, and updated fixtures and lighting. It’s basically meal prep with style. Both bathrooms are updated, too—solid surface countertops, freshly painted vanities, brand new toilets, and upgraded lighting. The primary bedroom includes its own 3/4 bath, making mornings just a bit smoother. The enclosed, south-facing lanai is a cozy bonus space with double-pane glass/vinyl windows and shades—perfect for your morning coffee or plant collection, all with peaceful views of greenery. Living in Windsor Gardens means you’re not just buying a home—you’re joining a vibrant 55+ community with a 9-hole par-3 golf course, indoor and outdoor pools, a fitness center, classes, a restaurant, and more. Plus, the HOA covers pretty much everything: taxes, capital reserves, heat, water, sewer, trash, and 24-hour security. This cheerful, well-sized home with rare double garages is a sweet spot in one of Denver’s most sought-after active adult communities. Don’t miss out!
| 5 hours ago | Listing updated with changes from the MLS® | |
| 6 hours ago | Listing first seen on site |
The content relating to real estate for sale in this Web site comes in part from the Internet Data eXchange ("IDX") program of METROLIST, INC., DBA RECOLORADO real estate listings held by brokers other than Sterling Real Estate Group Inc are marked with the IDX Logo. This information is being provided for the consumers' personal, non-commercial use and may not be used for any other purpose. All information subject to change and should be independently verified.

Did you know? You can invite friends and family to your search. They can join your search, rate and discuss listings with you.